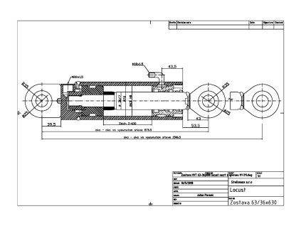
Hydraulický valec HV 63/32x630 111A211 UNC Locust
Kód: 791


Súvisiaci tovar
Podrobný popis
Hydraulický valec s označením HV 63/32x630 111A211 je špecifický komponent, ktorý sa najčastejšie používa v šmykom riadených nakladačoch typu UNC 060 a UNC 061 ako valec zdvihu výložníka.
Tu je jeho podrobný technický rozbor:
1. Rozšifrovanie označenia
-
HV: Typové označenie (Hydraulický Valec / Hydromotor priamočiary).
-
63: Vnútorný priemer valca (piestu) v mm.
-
32: Priemer piestnej tyče v mm.
-
630: Zdvih valca (maximálny výsuv) v mm.
-
111A211: Variantné katalógové číslo definujúce typ uchytenia (koncovky), umiestnenie prívodov oleja a tesniacu sadu.
2. Technické parametre
Tento model je konštruovaný pre náročné prevádzkové podmienky stavebných strojov.
| Parameter | Hodnota |
| Menovitý tlak | 16 MPa (160 bar) |
| Maximálny tlak | 25 MPa (250 bar) |
| Uchytenie (oká) | Zvárané oká s otvormi pre čapy 25 mm |
| Pripojenie oleja | Závit M22x1,5 (typický pre stroje UNC/Locust) |
| Pracovná kvapalina | Hydraulický minerálny olej |
| Prevádzková teplota | -40 °C až +60 °C (okolie), do +80 °C (olej) |
3. Použitie a kompatibilita
Tento valec je primárne určený pre:
-
UNC 060 / 061: Hlavný valec zodpovedný za zdvíhanie a spúšťanie ramena (výložníka).
-
Locust 750: Staršie modely môžu využívať rovnakú konfiguráciu.
-
Originálne katalógové číslo: 533-0-62-19-006-1 (v originálnej dokumentácii UNC 061).
4. Konštrukčné vlastnosti
-
Materiál: Tyč je chrómovaná pre vysokú odolnosť voči korózii a mechanickému poškodeniu nečistotami.
-
Údržba: Oká sú zvyčajne osadené výkyvnými ložiskami (typu GE), ktoré umožňujú mierne vychýlenie a zabraňujú namáhaniu konštrukcie pri krútení stroja.
-
Tesnenia: V tomto variante (111A211) sa používajú zosilnené sady tesnení, ktoré lepšie zvládajú tlakové špičky pri práci s plnou lopatou.
Dôležitá poznámka: Pri montáži na staršie stroje skontrolujte, či sú vaše prívodné hadice vybavené závitom M22x1,5. Niektoré novšie verzie alebo náhrady môžu mať palcové závity (G 1/2"), čo by vyžadovalo použitie redukcií.
V prípade ak máte záujem o iný typ hydraulického valca alebo máte záujem o väčšie množstvo kontaktujte nás pre veľkoobchodnú cenu. Zmeny uchytenia valca alebo iné zmeny vám vieme zabezpečiť po konzultácií.
Dodatočné parametre
| Kategória: | Hydraulika UNC |
|---|---|
| Vnutorny priemer: | 63 mm |
| Priemer piestnej tyce: | 32 mm |
| Priemer capu: | 25 mm |
Buďte prvý, kto napíše príspevok k tejto položke.
