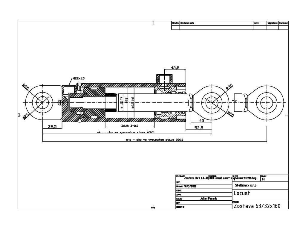
Hydraulický valec HV 63/32x160 111A111 UN 053
Kód: 845


Podrobný popis
Hydraulický valec s označením HV 63/32x160 (často dopĺňaný kódom typu uchytenia, napr. 111A111) je dvojčinný priamočiary hydromotor, ktorý sa v našich podmienkach najčastejšie využíva v mechanizmoch riadenia alebo pomocných funkciách stavebných a poľnohospodárskych strojov.
Tu je podrobný technický popis:
1. Rozšifrovanie označenia
Základné čísla v názve definujú kľúčové rozmery valca v milimetroch:
-
63: Vnútorný priemer valca (vŕtanie). Plochou tohto priemeru pôsobí tlak oleja na piest, čo určuje tlačnú silu valca.
-
32: Priemer piestnej tyče (výsuvnej časti). Pomer medzi 63 a 32 určuje rozdiel medzi silou pri vysúvaní a zasúvaní.
-
160: Zdvih valca. Ide o maximálnu dĺžku, o ktorú sa piestna tyč vysunie zo základnej polohy.
2. Technické parametre
| Parameter | Hodnota |
| Menovitý tlak | 16 MPa (160 bar) |
| Maximálny tlak | 20 – 25 MPa (200 – 250 bar) |
| Pracovná kvapalina | Hydraulický minerálny olej (napr. HM 46, HM 32) |
| Rozsah teplôt | -20 °C až +80 °C |
| Materiál piestnice | Akostná oceľ s tvrdochrómovou vrstvou (odolnosť voči korózii) |
| Pripojovacie závity | Najčastejšie M22x1,5 (štandard pre stroje UNC, UN) |
3. Najčastejšie použitie
Tento konkrétny model so zdvihom 160 mm sa v praxi vyskytuje najmä pri týchto strojoch:
-
Nakladač UN 053 (Hon): Často využívaný ako valec riadenia.
-
UNC 060 / 061 / Locust: Použitie v rôznych prídavných zariadeniach alebo pomocných okruhoch (napr. ovládanie uzatvárania drapákov).
-
Poľnohospodárska technika: Ovládanie ramien postrekovačov, menších pluhov alebo podkopov.
4. Konštrukčné vyhotovenie (Typ 111A111)
Ak je valec označený doplnkovým kódom 111A111, znamená to:
-
Uchytenie: Pevné oká na oboch stranách (na dne valca aj na konci tyče) osadené výkyvnými ložiskami (unibaly), zvyčajne pre čap Ø 25 mm.
-
Umiestnenie prípojok: Prípojky pre olej sú orientované rovnobežne s rovinou kývania ok.
-
Servisovateľnosť: Valec je rozoberateľný (skrutkované veko), čo umožňuje jednoduchú výmenu tesnení (manžiet) v prípade úniku oleja.
5. Hlavné výhody
-
Vysoká odolnosť: Robustná zváraná konštrukcia určená do ťažkých podmienok.
-
Dostupnosť dielov: Vďaka normalizovaným rozmerom sú sady tesnení aj ložiská bežne dostupné v každej predajni s hydraulikou.
V prípade ak máte záujem o iný typ hydraulického valca alebo máte záujem o väčšie množstvo kontaktujte nás pre veľkoobchodnú cenu. Zmeny uchytenia valca alebo iné zmeny vám vieme zabezpečiť po konzultácií.
Dodatočné parametre
| Kategória: | Hydraulika UNC |
|---|---|
| Vnutorny priemer: | 63 mm |
| Priemer piestnej tyce: | 32 mm |
| Priemer capu: | 25 mm |
Diskusia
Buďte prvý, kto napíše príspevok k tejto položke.
