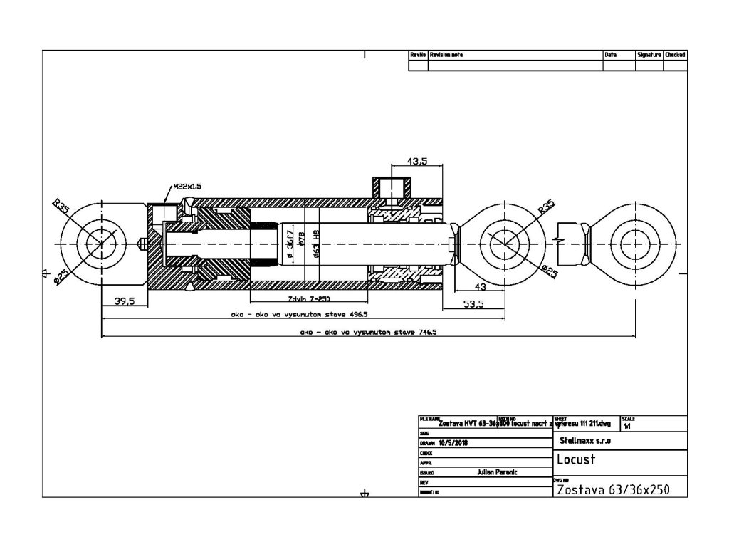
Hydraulický valec HV 63/36x250 111A111 UNC
Kód: 786


Súvisiaci tovar
Podrobný popis
Hydraulický valec HV 63/36x250 UNC (často označovaný aj katalógovým číslom 533-0-34-19-030-1 alebo kódom 111A111) je špeciálny komponent používaný v šmykom riadených nakladačoch ako vyrovnávací valec.
Hlavné použitie: UNC 060 a UNC 061
Tento valec má v hydraulickom systéme nakladačov UNC 060 a UNC 061 špecifickú úlohu:
-
Vyrovnávacia funkcia: Slúži na automatické vyrovnávanie polohy lopaty (nástroja) počas zdvíhania výložníka. Tým sa zabraňuje samovoľnému vysypaniu materiálu pri pohybe ramena smerom nahor.
-
Umiestnenie: Nachádza sa v zadnej časti stroja, prepojený s kinematikou výložníka.
Technická špecifikácia
| Parameter | Hodnota |
| Vnútorný priemer (piest) | 63 mm |
| Priemer piestnice | 36 mm (zosilnená pre presné vedenie) |
| Zdvih (výsuv) | 250 mm |
| Dĺžka v zasunutom stave | 496.5 mm (stred-stred oka) |
| Uchytenie | Oká so zalisovanými ložiskami GE 25 (pre čapy 25 mm) |
| Pripojovacie závity | M22x1,5 (štandard UNC/Locust) |
| Max. pracovný tlak | 25 MPa (250 bar) |
Katalógové čísla a identifikácia
-
Originálne číslo (PPS): 533-0-34-19-030-1
-
Staršie označenie: HV 63/36/250
Konštrukčné detaily
-
Zosilnená tyč: Použitie 36 mm piestnice (oproti bežnejším 32 mm pri tomto priemere valca) zvyšuje tuhosť a odolnosť voči radiálnemu namáhaniu, ktoré vzniká pri vyrovnávacej funkcii.
-
Servis: Vzhľadom na jeho funkciu v systéme UNC je kritický stav tesnení; pri netesnosti tohto valca lopata pri zdvíhaní neudrží svoju polohu ("padá").
-
Materiál: Tyč je tvrdochrómovaná s vysokou odolnosťou proti korózii.
V prípade ak máte záujem o iný typ hydraulického valca alebo máte záujem o väčšie množstvo kontaktujte nás pre veľkoobchodnú cenu. Zmeny uchytenia valca alebo iné zmeny vám vieme zabezpečiť po konzultácií.
Dodatočné parametre
| Kategória: | Hydraulika UNC |
|---|---|
| Vnutorny priemer: | 63 mm |
| Priemer piestnej tyce: | 36 mm |
| Priemer capu: | 25 mm |
Diskusia
Buďte prvý, kto napíše príspevok k tejto položke.
