Hydraulický valec HV 63/36x500 111A111 Locust
Kód: 809


Súvisiaci tovar
Podrobný popis
Hydraulický valec s označením HV 63/36x500 (často pod katalógovým kódom 111A111) predstavuje zosilnenú verziu štandardného 500 mm valca. Vďaka hrubšej piestnici je navrhnutý pre stroje, ktoré vyžadujú vyššiu tuhosť pri práci s ťažkým náradím.
Technická špecifikácia
Tento model kombinuje stredný zdvih s vysokou odolnosťou voči bočnému namáhaniu.
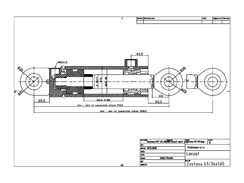
| Parameter | Hodnota |
| Vnútorný priemer (piest) | 63 mm |
| Priemer piestnej tyče | 36 mm (zosilnená oproti štandardným 32 mm) |
| Zdvih (výsuv) | 500 mm |
| Dĺžka v zasunutom stave | 746.5 mm (stred-stred oka) |
| Uchytenie | Oká s kĺbovými ložiskami GE 25 (pre čapy 25 mm) |
| Pripojovacie závity | M22x1,5 |
| Max. pracovný tlak | 25 MPa (250 bar) |
Použitie a výhody
Tento valec sa najčastejšie montuje do novších generácií šmykom riadených nakladačov a prídavných zariadení ako valec lopaty - nastroja 34-19-031-2 / 00065001 / 07064063.
-
Locust 752 / 753 / 853: Používa sa ako valec lopaty (nástroja). Zosilnená 36 mm tyč je kľúčová pri práci s paletizačnými vidlami alebo hydraulickými kliešťami, kde dochádza k nerovnomernému zaťaženiu.
-
UNC 060 / 061 (Upgrade): Je možné ho použiť ako odolnejšiu náhradu za pôvodný valec s 32 mm tyčou, pričom montážne rozmery ostávajú zachované.
-
Odolnosť: Väčší priemer tyče zvyšuje odolnosť proti ohnutiu piestnice pri nárazoch lopaty do terénu alebo pri páčení.
Identifikačné kódy
Pri hľadaní náhradného dielu sa môžete stretnúť s týmito označeniami:
-
Alternatíva: 533-0-34-19-031-1 (ak je modifikovaný na 36 mm tyč)
Upozornenie: Ak pretesňujete tento valec, uistite sa, že kupujete sadu tesnení pre tyč 36 mm. Štandardné sady pre UNC 060 (tyč 32 mm) nebudú pasovať na vodiace puzdro a stierací krúžok.
V prípade ak máte záujem o iný typ hydraulického valca alebo máte záujem o väčšie množstvo kontaktujte nás pre veľkoobchodnú cenu. Zmeny uchytenia valca alebo iné zmeny vám vieme zabezpečiť po konzultácií.
Dodatočné parametre
| Kategória: | Hydraulika LOCUST |
|---|---|
| Vnutorny priemer: | 63 mm |
| Priemer piestnej tyce: | 36 mm |
| Priemer capu: | 25 mm |
Diskusia
Buďte prvý, kto napíše príspevok k tejto položke.
